Skip to content
1882

A Carolingian Monastery, Fulda. Its Beginnings, Buildings and its Monastic Economy

image of A Carolingian Monastery, Fulda. Its Beginnings, Buildings and its Monastic Economy
Preview this chapter:
Loading full text...

Full text loading...

/content/books/10.1484/M.HAMA-EB.5.144810
View: Figures

Figures

Image of Fig. 14.1.
Fig. 14.1. Situation of the monastery of Fulda in the ninth century, with reconstructed buildings and water courses, the excavated sites at Langebrückenstraße and at no. 20 An der Tränke are marked (redrawing by the author from Vonderau 1946 and Hahn 1984).
Image of Fig. 14.2.
Fig. 14.2. The monastery of Fulda in the eighth century, the shape and exact situation of the church is unknown (redrawing by the author from Vonderau 1946, Hahn 1984 and Jacobsen 1996).
Image of Fig. 14.3.
Fig. 14.3. The distribution of late Roman and early medieval sub-floor-heatings, (redrawing by the author from Drack 1988 and Jecklin-Tischhauser 2019).
Image of Fig. 14.4.
Fig. 14.4. The distribution of archaeological evidences of early medieval watermills, evident by preserved wooden objects, watermills in monasteries: 1 – Fulda, 2 – Werden/ Ruhr (redrawing by the author from Kind 2016, with additions).
Image of Fig. 14.5.
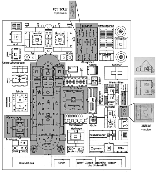
Fig. 14.5. The St Gall plan in schematic reconstruction, all parts evident in Fulda are marked in grey (redrawing by the author from Bartmuß 1985).

References

  1. Sources
    Candidus Fuldensis monachus, Vita Sancti Eigilis abbatis Fuldensis, ed. G. Waitz, Hannoverae, 1887, p. 221-223 (MGH, SS 15).
  2. Cassiodorus, Institutiones divinarum et saecularium litterarum, ed. W. Bürsgens, Freiburg, 2003 (Fontes Christiani, 39).
  3. Gesta abbatum Fuldensium, ed. K. Schmid, in Die Klostergemeinschaft von Fulda im früheren Mittelalter, I, München, 1978, p. 212-213 (Münstersche Mittelalter-Schriften, 8/1).
  4. Eigilus abbas Fuldensis, Vita Sturmi, ed. P. Engelbert, Die Vita Sturmi des Eigil von Fulda, Literarkritisch-historische Untersuchung und Edition, Marburg, 1968 (Veröffentlichungen der Historischen Kommission für Hessen und Waldeck, 29).
  5. Walahfridus Strabo, Hortulus, ed. W. Berschin, Walahfrid Strabo, De cultura hortorum (Hortulus), Heidelberg, 2010 (Reichenauer Texte und Bilder, 13).
  6. Secondary Literature
    Bartmuß 1985: Bartmuß, H.-J., « Das Entstehen und die Festigung des deutschen Feudalstaates und die Herausbildung des deutschen Volkes (Mitte des 9. bis Mitte des 10. Jahrhunderts », in Herrmann, J. et. al., Deutsche Geschichte in zwölf Bänden, I: Von den Anfängen bis zur Ausbildung des Feudalismus Mitte des 11. Jahrhunderts, Berlin, 1985, p. 348-392.
  7. Becher 2003: Becher, M., « Eine verschleierte Krise, Die Nachfolge Karl Martells 741 und die Anfänge der karolingischen Hofgeschichtsschreibung », in Laudage, J. (ed.), Von Fakten und Fiktionen, Mittelalterliche Geschichtsdarstellungen und ihre kritische Aufarbeitung, Köln, 2003, p. 95-133.
  8. Berschin 1995: Berschin, W., « Kritische Verse Notkers des Stammlers auf Gozberts Münsterbau », in Ochsenbein, P. and Ziegler, E. (eds), Codices sangallenses. Festschrift für Johannes Duft zum 80. Geburtstag, Sigmaringen, 1995, p. 1-7.
  9. Bethge 1928: Bethge, O., « Über Bifänge », in Vierteljahrschrift für Sozial- und Wirtschaftsgeschichte, 20, 1928, p. 139-165.
    [Google Scholar]
  10. Billamboz & Becker 2001: Billamboz, A., Becker, B., « Die frühmittelalterlichen Grabkammern von Lauchheim im dendrochronologischen Datennetz Südwestdeutschlands », in Fundberichte aus Baden-Württemberg, 25, 2001, p. 831-870.
  11. Bischof 2021: Bischof, A., « Die Ausgrabungen im Dom zu Eichstätt », in Lohwasser, N. and Schreg, R. (eds), Kleine Funde, große Geschichten, Archäologische Funde aus dem Bamberger Dom, Bamberg, 2021, p. 137-146 (AMANZ Notizhefte, 1).
  12. Blan 2019: Blan, N., « Charlemagne’s peaches: a case of early medieval European ecological adaption », in Early Medieval Europe, 27, 2019, p. 521-545.
    [Google Scholar]
  13. Brachmann 1993: Brachmann, H., Der frühmittelalterliche Befestigungsbau in Mitteleuropa. Untersuchungen zu seiner Entwicklung und Funktion im germanisch-deutschen Bereich, Berlin, 1993 (Schriften zur Ur- und Frühgeschichte, 45).
  14. Brand 2017: Brand, C., « Die Benediktinerabtei Werden – ein Mustergut der Karolingerzeit », in Archäologie im Rheinland 2016, 2017, p. 181-183.
  15. Brenk 2002: Brenk, B., « Zum Problem der Vierflügelanlage (Claustrum) in frühchristlich-frühmittelalterlichen Klöstern », in Ochsenbein, P., Schmuki, K. (eds), Studien zum St. Galler Klosterplan, II, St. Gallen, 2002, p. 185-215 (Mitteilungen zur vaterländischen Geschichte, 52).
  16. Brunert 1996: Brunert, M. E., « Fulda als Kloster in eremo Zentrale Quellen über die Gründung im Spiegel der hagiographischen Tradition », in Schrimpf 1996, p. 59-78.
  17. Claussen 2014: Claussen, H., « Eine Reliquiennische in der Krypta auf dem Petersberg bei Fulda », in Kenner et al. 2014, p. 239-261.
  18. Clay 2020: Clay, J., « Boniface in Hessia and Thuringia », in Godlove, S., Aaij, M. (eds), A Companion to Boniface, Leiden, 2020, p. 270-298 (Brill’s Companions to the Christian Tradition, 92).
  19. Cramp 2005: Cramp, R., Wearmouth and Jarrow Monastic Sites, I, Swindon, 2005 (English Heritage Archaeological Monographs).
  20. Cramp 2008: Cramp, R., « Monastic settlements in Britain in the seventh-11th centuries », in De Rubeis, F., Marazzi, F. (eds), Monasteri in Europa occidentale (secoli VIII-XI): topografia e strutture, Roma, 2008, p. 113-133.
  21. Dannheimer 1991: Dannheimer, H., « Archäologische Chiemseeforschungen 1979-1989 », in Dannheimer, H. (ed.), Spurensuche, Festschrift für Hans-Jörg Kellner zum 70. Geburtstag, Kallmünz (Opf), 1991, p. 191-202 (Kataloge der Prähistorischen Staatssammlung, Beih. 3).
  22. Dannheimer 2005: Dannheimer, H., Frauenwörth. Archäologische Bausteine zur Geschichte des Klosters auf der Fraueninsel im Chiemsee, München, 2005 (Bayerische Akademie der Wissenschaften, Philosophisch-historische Klasse, Abhandlungen, N.F. 126).
  23. Drack 1988: Drack, W., « Die römischen Kanalheizungen der Schweiz », Jahrbuch der Schweizerischen Gesellschaft für Ur- und Frühgeschichte, 71, 1988, p. 123-159.
  24. Ellger 1989: Ellger, O., Die Michaelskirche zu Fulda als Zeugnis der Totensorge, Zur Konzeption einer Friedhofs- und Grabkirche im karolingischen Kloster Fulda, Fulda, 1989 (Veröffentlichung des Fuldaer Geschichtsvereins, 55).
  25. Elmshäuser 1992: Elmshäuser, K., « Kanalbau und technische Wasserführung im frühen Mittelalter », in Technikgeschichte, 59, 1992/1, p. 1-26.
  26. Faulkner 2022: Faulkner, N., « An agro-social revolution in a mid Saxon village: making sense of the Sedgeford excavations », in McKerracher, M., Hamerow, H. (eds), New Perspectives on the Medieval ‘Agricultural Revolution’: Crop, Stock and Furrow, Liverpool, 2022, p. 161-178.
  27. Fiorentino & Solinas 2015: Fiorentino, G., Solinas, F., « Le ricerche archeobotaniche: le cucine dell’abbazia e lo scarico al ponte della Zingara », in Marazzi, F., Luciano, A. (eds), Iuxta flumen Vulturnum, Gli scavi lungo il fronte fluviale di San Vincenzo al Volturno, Cerro al Volturno, 2015 (Studi Vulturnensi, 7), p. 245-258.
  28. Fischer & Oswald 1968: Fischer, M. F., Oswald, F., « Zur Baugeschichte der Fuldaer Klosterkirchen », in Rheinische Ausgrabungen, I, Köln-Graz, 1968, p. 268-280.
  29. Gauert 1984: Gauert, A., « Curtis », in Hoops’ Reallexikon der Germanischen Altertumskunde, V, Berlin-New York, 1984, p. 105-112.
  30. Gelichi 2018: Gelichi, S., « Il monastero nel tempo », in Gelichi, S., Librenti, M., Cianciosi, A. (eds), Nonantola 6: Monaci e contadini, abati e re il monastero di Nonontola attraverso l’archeologia (2002-2009), Sesto Fiorentino, 2018, p. 367-409.
  31. Geuenich 1996: Geuenich, D., « Die personelle Entwicklung der Klostergemeinschaft von Fulda bis zum Jahr 1000 », in Schrimpf 1996, p. 163-176.
  32. Gross 2011: Gross, U., « Zur früh- und hochmittelalterlichen Siedlungsgeschichte von Kirchheim », in Kirchheim unter Teck um 1000 n.Chr., Stuttgart, 2011, p. 68-80 (Geschichte und Archäologie, Archäologische Informationen aus Baden-Württemberg, 62).
  33. Haase, Werther & Wunschel 2015: Haase, C., Werther, L., Wunschel, A., « Güterdistribution und Verkehrsinfrastruktur klösterlicher Grundherrschaft im Frühmittelalter im Spannungsfeld ausgewählter historischer und archäologischer Quellen », in Later, C., Helmbrecht, M., Jecklin-Tischhauser, U. (eds), Infrastruktur und Distribution zwischen Antike und Mittelalter, Hamburg, 2015, p. 151-188 (Studien zu Spätantike und Frühmittelalter, 8).
  34. Haertle 1997: Haertle, C. M., Karolingische Münzfunde aus dem 9. Jahrhundert, Köln-Weimar-Wien, 1997.
  35. Hägermann 1990: Hägermann, D., « St. Galler Klosterplan – Ein Dokument technologischer Innovationen des Frühmittelalters? », in Rheinische Vierteljahrsblätter, 54, 1990, p. 1-18.
    [Google Scholar]
  36. Hägermann 1991: Hägermann, D., « Technik im frühen Mittelalter zwischen 500 und 1000 », in Hägermann, D., Schneider, H., Landbau und Handwerk. 750 v. Chr. bis 1000 n. Chr., Berlin, 1991 (Propyläen Technikgeschichte, 1), p. 316-508.
  37. Hahn 1984: Hahn, H., « cat. no 211,1 “Fulda Domplatz-Bereich” », in Roth, H., Wamers, E. (eds), Hessen im Frühmittelalter, Archäologie und Kunst, Ausstellung des Museums für Vor- und Frühgeschichte, Sigmaringen, 1984, p. 300-307.
  38. Hinz 1967: Hinz, H., « Die Stellung der Curtes innerhalb des karolingischen Wehrbaues », in Germania, 45, 1967, p. 130-142.
  39. Hodges 2016: Hodges, R., « In small things forgotten: Iuxta flumen Vulturnum. Gli scavi lungo il fronte fluviale di San Vincenzo al Volturno », in Archeologia medievale, 43, 2016, p. 417-421.
  40. Hodges 2022: Hodges, R., « Reflections on early medieval Montecassino’s epigraphic and settlement histories », Archeologia medievale, 49, 2022, p. 9-43.
  41. Hoffsummer & Tilkins-Peters 1988: Hoffsummer, P., Tilkins-Peters, C., « Le matériel archéologique des couchs médiévales », in Otte, M. (ed.), Les fouilles de la place Saint-Lambert a Liège, 2. Le vieux marché, Liège, 1988 (Études et recherches archéologique de l’Université de Liège, 23), p. 201-214.
  42. Horn 1973: Horn, W., « On the origins of the medieval cloister », in Gesta, 12, 1973, p. 13-52.
  43. Hussong 1985: Hussong, U., « Studien zur Geschichte der Reichsabtei Fulda bis zur Jahrtausendwende. Teil 1 », in Archiv für Diplomatik, 31, 1985, p. 1-225.
    [Google Scholar]
  44. Hussong 1986: Hussong, U., « Studien zur Geschichte der Reichsabtei Fulda bis zur Jahrtausendwende. Teil 2 », in Archiv für Diplomatik, 32, 1986, p. 129-304.
    [Google Scholar]
  45. Jacobsen 1996: Jacobsen, W., « Die Abteikirche in Fulda von Sturmius bis Eigil – kunstpolitische Positionen und deren Veränderungen », in Schrimpf 1996, p. 105-128.
  46. Jarnut 1975: Jarnut, J., « Quierzy und Rom, Bemerkungen zu den “Promissiones donationis” Pippins und Karls », in Historische Zeitschrift, 220, 1975, p. 265-297.
    [Google Scholar]
  47. Jäschke 1977: Jäschke, K.-U., « Bonifatius und die Königssalbung Pippin des Jüngeren », in Archiv für Diplomatik, 23, 1977, p. 25-54.
    [Google Scholar]
  48. Jebe 2021: Jebe, J., « Reform als Bedrohung? Diagnosen aus der Fuldaer Mönchsgemeinschaft im Spiegel des Supplex libellus und der Vita Sturmi », in Bührer-Thierry, G., Grabowsky, A., Patzold, S. (eds), Les communautés menacées au haut Moyen Âge (vie‑xie siècles), Turnhout, 2021 (Haut Moyen Âge, 42), p. 57-79.
  49. Jecklin-Tischhauser 2019: Jecklin-Tischhauser, U., Tomils, Sogn Murezi, Ein kirchliches Zentrum im frühmittelalterlichen Graubünden, Chur, 2019 (Archäologie Graubünden, Sonderh. 13).
  50. Kavánová 1995: Kavánová, B., « Knochen- und Geweihindustrie in Mikulčice », in Daim, F., Poláček, L. (eds), Studien zum Burgwall von Mikulčice 1, Brno, 1995 (Spisy archeologického ústavu AV ČR Brno 2), p. 113-378.
  51. Kenner et al. 2014: Kenner, C. et al. (eds), Die Kirche St. Peter in Petersberg bei Fulda, Denkmalpflege und Forschung, Stuttgart, 2014 (Arbeitshefte des Landesamtes für Denkmalpflege Hessen, 20).
  52. Kind 2008: Kind, T., « Das karolingerzeitliche Kloster Fulda – ein “monasterium in solitudine”. Seine Strukturen und Handwerksproduktion nach den seit 1898 gewonnenen archäologischen Daten », in Henning, J. (ed.), Post-Roman Towns, Trade and Settlement in Europe and Byzantium, I. The Heirs of the Roman West, Berlin-New York, 2008 (Millennium-Studien zu Kultur und Geschichte des ersten Jahrtausends n. Chr., 5/1), p. 367-410.
  53. Kind 2009: Kind, T., « Pfahlbauten und merowingische curtis in Fulda? », in Hamberger, W., Heiler, Th., Kirchhoff, W. (eds), Geschichte der Stadt Fulda, I. Von den Anfängen bis zum Ende des Alten Reiches, Fulda, 2009, p. 45-68.
  54. Kind 2011: Kind, T., « Das Kloster Fulda im 9.–10. Jahrhundert in archäologischer Sicht – Siedlungsstruktur und Alltagskultur », in Stasch, G. K., Verse, F. (eds), König Konrad I. Herrschaft und Alltag, 911 Königswahl zwischen Karolingern und Ottonen, Begleitband zur Ausstellung Vonderau Museum Fulda 09.11.2011-5.2.2012, Petersberg, 2011 (Vonderau Museum Fulda Kataloge, 28), p. 85-102.
  55. Kind 2016: Kind, T., « Fulda-Langebrückenstrasse: The first excavated early medieval watermill in Europe », in Jaccottey, L., Rollier, G. (eds), Archéologie des moulins hydrauliques, à traction animale et à vent des origines à l’époque médiévale et moderne en Europe et dans le monde méditerranéen, Actes du colloque international (Lons-le-Saunier, 2-5 novembre 2011), Besançon, 2016 (Annales littéraires de l’Université de Besançon, 959; Série Environnement, sociétés et archéologie, 20), p. 277-287.
  56. Kind, Wedepohl & Kronz 2004: Kind, T., Wedepohl, K. H., Kronz, A., « Karolingerzeitliches Glas und verschiedene Handwerksindizien aus dem Kloster Fulda. Aufarbeitung der Altfunde Joseph Vonderaus von 1898-99 », in Zeitschrift für Archäologie des Mittelalters, 31, 2004, p. 61-93.
    [Google Scholar]
  57. Klüßenorf 1984: Klüßendorf, N., « cat.no 155 “Denar Ludwigs des Frommen” », in Roth, H., Wamers, E. (eds), Hessen im Frühmittelalter, Archäologie und Kunst, Ausstellung des Museums für Vor- und Frühgeschichte, Sigmaringen 1984, p. 234-235.
  58. Krause 2002: Krause, E., Die Ratgerbasilika in Fulda, Eine forschungsgeschichtliche Untersuchung, Fulda, 2022 (Quellen und Abhandlungen zur Geschichte der Abtei und der Diözese Fulda, 27).
  59. Kreuz 2018: Kreuz, A., « Archäobotanische Hinweise zu Landwirtschaft, Gartenbau und Ernährung der Mönche », in Lammers, D. (ed.), Kloster Lorsch, Die archäologischen Untersuchungen der Jahre 2010-2016, Zehntscheune und Forstgarten, Regensburg, 2018 (Schriften zum Kloster Lorsch, 2), p. 316-321.
  60. Krier & Wagner 1985: Krier, J., Wagner, R., « Zur Frühgeschichte des Willibrordus-Klosters in Echternach », in Hémecht, 37, 1985, p. 15-51.
    [Google Scholar]
  61. Kügelgen 2016: Kügelgen, D. von Der Mann mit dem goldenen Spaten, Joseph Vonderau (1863-1951) im Spiegel seiner Zeit, Fulda, 2016 (Veröffentlichung des Fuldaer Geschichtsvereins, 72).
  62. Legler 1996: Legler, R., « Problem mit einem Phantom oder: Seit wann gibt es einen Kreuzgang in der abendländischen Klosterarchitektur? », in Sennhauser 1996, p. 85-89.
  63. Lobbedey 1986: Lobbedey, U., « Zu eingetieften Räumen in früh- und hochmittelalterlichen Kirchen », in Frühmittelalterliche Studien, 20, 1986, p. 390-413.
    [Google Scholar]
  64. Lobbedey 2008: Lobbedey, U., « Klosterbau im deutschen Reich vom frühen Mittelalter bis zur Zeit der Ottonen », in De Rubeis, F., Marazzi, F. (eds), Monasteri in Europa occidentale (secoli VIII-XI): topografia e strutture, Roma, 2008, p. 103-111.
  65. Lobbedey 2014: Lobbedey, U., « Die Kirche auf dem Petersberg – architekturgeschichtliche Einordnung der vor- und frühromanischen Bauteile », in Kenner et al. 2014, p. 263-282.
  66. de Longueville & Pigière 2012: Longueville, S. de, Pigière, F., « Le mobilier en bois de cervidés, en os et en invoire », in Brulet, R. (ed.), La cathédrale Notre-Dame de Tournai, L’archéologie du site et des monuments anciens, 3: Mobiliers, archéozoologie et anthropologie, sépultures épiscopales, Namur, 2012 (Études et documents, Archéologie, 29), p. 129-165.
  67. Louis 1995: Louis, É., « Fouilles archéologiques sur le site du monastère merovingien puis carolingien de Hamage (France, Département du Nord) », in Handelingen der Maatschappij voor Geschiedenis en Oudheidkunde te Gent, Nieuwe Reeks, 49, 1995, p. 45-69.
  68. Louis 1997: Louis, É., « Aux débuts du monachisme en Gaule du Nord: les fouilles de l’abbaye mérovingienne et carolingienne de Hamage (Nord) », in Rouche, M. (ed.), Clovis, histoire & mémoire, Le baptême de Clovis, son écho à travers l’histoire, Paris, 1997, p. 843-868.
  69. Louis 2002: Louis, É., Wandignies-Hamage, ancienne abbaye de Hamage, Villeneuve d’Ascq, 2002 (Archéologie en Nord et Pas-de-Calais, 2).
  70. Louis 2015: Louis, É., « Les indices d’artisanat dans et autour de monastère de Hamage (Nord) », Bulletin du centre d’études mediévales d’Auxerre, hors-série 8, 2015, p. 186-200.
  71. Löwe 1955: Löwe, H., « Bonifatius und die bayerisch-fränkische Spannung, Ein Beitrag zur Geschichte der Beziehungen zwischen dem Papsttum und den Karolingern », in Jahrbuch für fränkische Landesforschung, 15, 1955, p. 85-127.
  72. Luciano 2015: Luciano, A., « I pettini e l’artigianato dell’ osso e del cuoio a San Vincenzo al Volturno », in Marazzi, F., Luciano A. (eds), Iuxta flumen Vulturnum, Gli scavi lungo il fronte fluviale di San Vincenzo al Volturno, Cerro al Volturno, 2015 (Studi Vulturnensi, 7), p. 203-215.
  73. Markgraf & Weidemüller 2022: Markgraf, K., Weidemüller, J., « Eine karolingische Wassermühle im Paartal bei Oberbernbach », in Das archäologische Jahr in Bayern 2021, 2022, p. 121-124.
  74. McErlean & Crothers 2007: McErlean, T. & Crothers, N., Harnessing the tides, The early medieval tide mills at Nendrum monastery, Strangford Lough, Norwich, 2007 (Northern Ireland archaeological monographs 7).
  75. McKerracher 2022: McKerracher, M., « Prospect and protect: syntironomy and cereals in early medieval England », in McKerracher, M., Hamerow, H. (eds), New Perspectives on the Medieval ‘Agricultural Revolution’: Crop, Stock and Furrow, Liverpool, 2022, p. 125-144.
  76. Meyer 1989: Meyer, D., « Warmluftheizungen des Mittelalters, Befunde aus Lübeck im europäischen Vergleich », in Bauforschung und Handwerk auf dem Lübecker Stadthügel, Bonn, 1989 (Lübecker Schriften zur Archäologie und Kulturgeschichte, 16), p. 209-232.
  77. Mitchell 2011: Mitchell, J., « The small finds », in Hodges, R., Leppard, S., Mitchell, J. (eds), San Vincenzo Maggiore and its Workshops, London, 2011 (Archaeological Monographs of The British School at Rome, 17), p. 195-333.
  78. Muigg et al. 2018: Muigg, B., et al., « Dendrochronological evidence of early medieval water mill technology », in Journal of Archaeological Science, 93, 2018, p. 17-25.
  79. Müller 1995: Müller, M., « Die vor- und frühgeschichtliche Besiedlung des Fuldaer Landes », in Heinemeyer, W., Jäger, B. (eds), Fulda in seiner Geschichte: Landschaft, Reichsabtei, Stadt, Fulda, 1995, p. 73-88.
  80. Niederhöfer 2002: Niederhöfer, K., « Alt-Schieder, Eine mittelalterliche Befestigungsanlage im Emmertal », in Lippische Mitteilungen aus Geschichte und Landeskunde, 71, 2002, p. 93-147.
    [Google Scholar]
  81. Otten 2003: Otten, T., Die Ausgrabungen unter St. Viktor zu Xanten, Dom und Immunität, Mainz, 2003 (Rheinische Ausgrabungen, 53).
  82. Padberg 2005: Padberg, L. E. von, Bonifatius, Missionar und Reformer, München 2003.
  83. Palmer 2009: Palmer, J. T., Anglo-Saxons in a Frankish World, 690-900, Turnhout, 2009 (Studies in the Early Middle Ages 19).
  84. Pesch 2005: Pesch, A., Das Domkloster, Archäologie und historische Forschung zu Liudgers honestum monasterium in pago Sudergoe. Die Ausgrabungen 1936-1981 am Horsteberg in Münster, Mainz, 2005 (Der Dom zu Münster, 4; Denkmalpflege und Forsschung in Westfalen, 26, 4).
    [Google Scholar]
  85. Polaček & Maříková-Kubková 2010: Polaček, L. Maříková-Kubková, J. (eds), Frühmittelalterliche Kirchen als archäologische und historische Quelle, Brno, 2010 (Internationale Tagungen in Mikulčice, 8).
  86. Prinz 1974: Prinz, F., « Topos und Realität in hagiographischen Quellen (Eine Erwiderung) », in Zeitschrift für bayerische Landesgeschichte, 37, 1974, p. 162-166.
    [Google Scholar]
  87. Prinz 1976: Prinz, F., « Frühes Mönchtum in Südwestdeutschland und die Anfänge der Reichenau. Entwicklungslinien und Forschungsprobleme », in Prinz, F. (ed.), Mönchtum und Gesellschaft im Frühmittelalter, Darmstadt, 1976, p. 151-203 (Wege der Forschung, 312).
  88. Prummel 2011: Prummel, W., « The bone and antler tools from the Wijnaldum-Tjitsma terp », in Journal of Archaeology in the Low Countries, 3, 2011, p. 65-106.
    [Google Scholar]
  89. Raaijmaakers 2012: Raaijmakers, J., The Making of the Monastic Community of Fulda, c. 744-c. 900, Cambridge, 2012 (Cambridge studies in medieval life and though, 4th ser., 83).
  90. Richter 1900: Richter, G., Die ersten Anfänge der Bau- und Kunstthätigkeit des Klosters Fulda. Zugleich erster Teil einer Kunstgeschichte des Klosters Fulda, Fulda, 1900 (Veröffentlichung des Fuldaer Geschichtsvereins, 2).
  91. Richter 1905: Richter, G, « Beiträge zur Geschichte der Grabeskirche des heiligen Bonifatius in Fulda », in Festgabe zum Bonifatius-Jubiläum 1905, Fulda, 1905 (Fuldaer Geschichtsverein, Vereinsgabe für das Jahr 1905), p. 1-76.
  92. Riesenberger 1970: Riesenberger, D, « Zur Geschichte des Hausmeiers Karlmann », Westfälische Zeitschrift, 120, 1970, p. 271-285.
    [Google Scholar]
  93. Rösener 1996: Rösener, W., « Die Grundherrschaft des Klosters Fulda in karolingischer und ottonischer Zeit », in Schrimpf 1996, p. 209-224.
  94. Rulkens 2013: Rulkens, A. J. R., Means, Motives and Opportunities: The Architecture of Monasteries during the Reign of Louis the Pious (814-840), Amsterdam 2013.
  95. Sage 1978: Sage, W., « Die Ausgrabungen in den Domen zu Bamberg und Eichsstätt 1969-1972 », in Jahresbericht der bayerischen Bodendenkmalpflege, 17/18, 1976/77, 1978, p. 178-234.
  96. Sapin 2008: Sapin, C., « L’archéologie des premiers monastères en France (ve-déb. xie s.), un état de recherches », in De Rubeis, F., Marazzi, F. (eds), Monasteri in Europa occidentale (secoli VIII-XI): topografia e strutture, Roma, 2008, p. 83-102.
  97. Sasse 2017: Sasse, B., « Alte Weisheit in Gottes Hand. Der karolingische Konstruktionsentwurf für das Kloster St. Gallen als Quelle für wassertechnische Planung in antiker Tradition », in Schattner, T., Valdés Fernández, F. (eds), Wasserversorgung in Toledo und Wissensvermittlung von der Antike ins Mittelalter, Tübingen-Berlin, 2017 (Iberia Archaeologica, 19), p. 339-369.
  98. Schieffer 1980: Schieffer, T. Winfrid-Bonifatius und die christliche Grundlegung Europas, Darmstadt 1980.
  99. Schmid 1994: Schmid, P., « Oldorf – eine frühmittelalterliche friesische Wurtsiedlung », in Germania, 72, 1994, p. 231-267.
  100. Schopf 2014: Schopf, S., « Ergebnisse und Zusammenfassung der baugeschichtlichen und restauratorischen Untersuchungen aus den Jahren 2003-07 », in Kenner et al. 2014, p. 151-228.
  101. Schreg 2014: Schreg, R., « Uncultivated landscapes or wilderness? Early medieval land use in low mountain ranges and flood plains of southern Germany », in European Journal of Postclassical Archaeologies, 4, 2014, p. 69-98.
    [Google Scholar]
  102. Schreg 2018: Schreg, R., « Mönche als Pioniere in der Wildnis? Aspekte des mittelalterlichen Landesausbaus », in Krätschmer, M., Thode, K., Vossler-Wolf, C. (eds), Klöster und ihre Ressourcen, Räume und Reformen monastischer Gemeinschaften im Mittelalter, Tübingen, 2018 (RessourcenKulturen, 7), p. 39-58.
  103. Schulze-Dörrlamm 2003: Schulze-Dörrlamm, M., « Der rekonstruierte Beinkasten von Essen-Werden, Reliquiar und mutmaßlicher Tragaltar des hl. Liudger aus dem späten 8. Jahrhundert », in Jahrbuch des Römisch-Germanischen Zentralmuseums Mainz, 49, 2003, p. 281-363.
    [Google Scholar]
  104. Schrimpf 1996: Schrimpf, G. (ed.), Kloster Fulda in der Welt der Karolinger und Ottonen, Frankfurt am Main, 1996 (Fuldaer Studien, 7).
  105. Schwind 1981: Schwind, F., « Buchonia », in Hoops’ Reallexikon der Germanischen Altertumskunde, IV, Berlin-New York, 1981, p. 85-87.
  106. Schwind 1999: Schwind, F., « Zu karolingerzeitlichen Klöstern als Wirtschaftsorganismen und Stätten handwerklicher Tätigkeit », in Braasch-Schwersmann, U. (ed.), Burg, Dorf, Kloster, Stadt. Beiträge zur hessischen Landesgeschichte ud zur mittelalterlichen Verfassungsgeschichte, Marburg, 1999 (Untersuchungen und Materilien zur Verfassungs- und Landesgeschichte, 17), p. 445-473.
  107. Sennhauser 1996: Sennhauser, H. R. (ed.), Wohn- und Wirtschaftsbauten frühmittelalterlicher Klöster.  Internationales  Symposium,  (Zurzach  und  Müstair, 26 september- 2 oktober 1995), Zürich, 1996 (Acta Müstair, 3; Veröffentlichungen des Instituts für Denkmalpflege an der ETH Zürich, 17).
  108. Sennhauser 1996a: Sennhauser, H. R., « Klostermauern und Klostertürme », in Sennhauser 1996, p. 195-218.
  109. Sennhauser 2003: Sennhauser, H. R., « Frühchristliche und frühmittelalterliche kirchliche Bauten in der Diözese Chur und in den nördlich und südlich angrenzenden Landschaften; Chur, Kirche (?) im Welschdörfli; Typen, Formen und Tendenzen im frühen Kirchenbau des östlichen Alpengebietes: Versuch einer Übersicht,» in Sennhauser, H. R. (ed.), Frühe Kirchen im östlichen Alpengebiet. Von der Spätantike bis in ottonische Zeit, München, 2003 (Bayerische Akademie der Wissenschaften, Philosophisch-historische Klasse, Abhandlungen, N.F. 123; Schriften der Kommission zur vergleichenden Archäologie römischer Alpen- und Donauländer), p. 9-222, 707-730, 919-980.
  110. Squatriti 2002: Squatriti, P., Water and Society in Early Medieval Italy, ad 400-1000, Cambridge, 2002.
  111. Tangl 1960: Tangl, G., « Die Sendung des ehemaligen Hausmeiers Karlmann in das Frankenreich im Jahre 754 und der Konflikt der Brüder », in Quellen und Forschungen aus italienischen Archiven und Bibliotheken, 40, 1960, p. 1-42.
    [Google Scholar]
  112. Untermann 1996: Untermann, M., « Das „Mönchshaus“in der früh- und hochmittelalterlichen Klosteranlage, Beobachtungen zu Lage und Raumaufteilung des Klausurostflügels », in Sennhauser 1996, p. 233-257.
  113. Untermann 2006: Untermann, M., Rezension Eva Krause, Die Ratgarbasilika…, in Mitteilungen der deutschen Gesellschaft für Archäologie des Mittelalters und der Neuzeit, 17, 2006, p. 144-147.
  114. Verse, Warneke & Wingenfeld 2021: Verse, F., Warneke, T., Wingenfeld, M., « Frühmittelalterliche Mühlen in Fulda », in Fuldaer Geschichtsblätter, 96, 2021, p. 7-30.
  115. Vonderau 1899: Vonderau, J., Pfahlbauten im Fuldathale, Fulda, 1899 (Veröffentlichung des Fuldaer Geschichtsvereins, 1).
  116. Vonderau 1931: Vonderau, J., Denkmäler aus vor- und frühgeschichtlicher Zeit im Fuldaer Lande, Fulda, 1931 (Veröffentlichung des Fuldaer Geschichtsvereins, 21).
  117. Vonderau 1946: Vonderau, J., Die Ausgrabungen am Domplatz zu Fulda im Jahre 1941. Ein merowingischer Gutshof auf dem nachmaligen Klostergelände, Fulda, 1946 (Veröffentlichung des Fuldaer Geschichtsvereins, 26).
  118. Walz 1989: Walz, D., Auf den Spuren der Meister, Die Vita des heiligen Magnus von Füssen, Sigmaringen 1989.
  119. Weidinger 1989: Weidinger, U., « Untersuchungen zur Grundherrschaft des Klosters Fulda in der Karolingerzeit », in Rösener, W. (ed.), Strukturen der Grundherrschaft im frühen Mittelalter, Göttingen, 1989 (Veröffentlichungen des Max-Planck-Instituts für Geschichte, 92), p. 247-265.
  120. Weidinger 1991: Weidinger, U., Untersuchungen zur Wirtschaftsstruktur des Klosters Fulda in der Karolingerzeit, Stuttgart, 1991 (Monographien zur Geschichte des Mittelalters, 36).
  121. Wickham 1990: Wickham, C., « European forests in the early middle ages: landscape and land clearance », in L’ambiente vegetale nell’alto medioevo. Settimane di studio del centro italiano di studi sull’alto medioevo, XLVII, Spoleto, 1990, p. 479-548.
  122. Wintergerst 2007: Wintergerst, M., Franconofurd 1: Die Befunde der karolingisch-ottonischen Pfalz aus den Frankfurter Altstadtgrabungen 1953-1993, Frankfurt, 2007 (Schriften des Archäologischen Museums Frankfurt, 22/1).
  123. Witten 2012: Witten, B., Die Vita der heiligen Lioba, Eine angelsächsische Äbtissin im Karolingerreich, Hamburg, 2012 (Studien zur Kirchengeschichte, 13).
  124. Zerl, Nolde & Meurers-Balke 2020: Zerl, T., Nolde, N., Meurers-Balke, J., « Die archäobotanischen und archäozoologischen Befunde aus der karolingerzeitlichen Abtei Werden im Spiegel frühmittelalterlicher Schriftquellen », in Beiträge zur Archäozoologie und Prähistorischen Anthropologie, 12, 2020, p. 105-116.
  125. Zettler 1988: Zettler, A., Die frühen Klosterbauten der Reichenau, Ausgrabungen – Schriftquellen – St. Galler Klosterplan. Archäologie und Geschichte, Sigmaringen, 1988 (Freiburger Forschungen zum ersten Jahrtausend in Südwestdeutschland, 3).
  126. Zettler 1989: Zettler, A., « Zum frühkarolingischen Klosterbau im östlichen Frankenreich: Das Beispiel Reichenau », in Zeitschrift für Archäologie des Mittelalters, 14/15, 1989, p. 81-118.
    [Google Scholar]
  127. Zettler 2008: Zettler, A. « Public, collective and communal spaces in early medieval monasteries: San Vincenzo and the Plan of Saint Gall », in De Rubeis, F., Marazzi, F. (eds), Monasteri in Europa occidentale (secoli VIII-XI): topografia e strutture, Roma 2008, p. 259-273.

References

  1. Sources
    Candidus Fuldensis monachus, Vita Sancti Eigilis abbatis Fuldensis, ed. G. Waitz, Hannoverae, 1887, p. 221-223 (MGH, SS 15).
  2. Cassiodorus, Institutiones divinarum et saecularium litterarum, ed. W. Bürsgens, Freiburg, 2003 (Fontes Christiani, 39).
  3. Gesta abbatum Fuldensium, ed. K. Schmid, in Die Klostergemeinschaft von Fulda im früheren Mittelalter, I, München, 1978, p. 212-213 (Münstersche Mittelalter-Schriften, 8/1).
  4. Eigilus abbas Fuldensis, Vita Sturmi, ed. P. Engelbert, Die Vita Sturmi des Eigil von Fulda, Literarkritisch-historische Untersuchung und Edition, Marburg, 1968 (Veröffentlichungen der Historischen Kommission für Hessen und Waldeck, 29).
  5. Walahfridus Strabo, Hortulus, ed. W. Berschin, Walahfrid Strabo, De cultura hortorum (Hortulus), Heidelberg, 2010 (Reichenauer Texte und Bilder, 13).
  6. Secondary Literature
    Bartmuß 1985: Bartmuß, H.-J., « Das Entstehen und die Festigung des deutschen Feudalstaates und die Herausbildung des deutschen Volkes (Mitte des 9. bis Mitte des 10. Jahrhunderts », in Herrmann, J. et. al., Deutsche Geschichte in zwölf Bänden, I: Von den Anfängen bis zur Ausbildung des Feudalismus Mitte des 11. Jahrhunderts, Berlin, 1985, p. 348-392.
  7. Becher 2003: Becher, M., « Eine verschleierte Krise, Die Nachfolge Karl Martells 741 und die Anfänge der karolingischen Hofgeschichtsschreibung », in Laudage, J. (ed.), Von Fakten und Fiktionen, Mittelalterliche Geschichtsdarstellungen und ihre kritische Aufarbeitung, Köln, 2003, p. 95-133.
  8. Berschin 1995: Berschin, W., « Kritische Verse Notkers des Stammlers auf Gozberts Münsterbau », in Ochsenbein, P. and Ziegler, E. (eds), Codices sangallenses. Festschrift für Johannes Duft zum 80. Geburtstag, Sigmaringen, 1995, p. 1-7.
  9. Bethge 1928: Bethge, O., « Über Bifänge », in Vierteljahrschrift für Sozial- und Wirtschaftsgeschichte, 20, 1928, p. 139-165.
    [Google Scholar]
  10. Billamboz & Becker 2001: Billamboz, A., Becker, B., « Die frühmittelalterlichen Grabkammern von Lauchheim im dendrochronologischen Datennetz Südwestdeutschlands », in Fundberichte aus Baden-Württemberg, 25, 2001, p. 831-870.
  11. Bischof 2021: Bischof, A., « Die Ausgrabungen im Dom zu Eichstätt », in Lohwasser, N. and Schreg, R. (eds), Kleine Funde, große Geschichten, Archäologische Funde aus dem Bamberger Dom, Bamberg, 2021, p. 137-146 (AMANZ Notizhefte, 1).
  12. Blan 2019: Blan, N., « Charlemagne’s peaches: a case of early medieval European ecological adaption », in Early Medieval Europe, 27, 2019, p. 521-545.
    [Google Scholar]
  13. Brachmann 1993: Brachmann, H., Der frühmittelalterliche Befestigungsbau in Mitteleuropa. Untersuchungen zu seiner Entwicklung und Funktion im germanisch-deutschen Bereich, Berlin, 1993 (Schriften zur Ur- und Frühgeschichte, 45).
  14. Brand 2017: Brand, C., « Die Benediktinerabtei Werden – ein Mustergut der Karolingerzeit », in Archäologie im Rheinland 2016, 2017, p. 181-183.
  15. Brenk 2002: Brenk, B., « Zum Problem der Vierflügelanlage (Claustrum) in frühchristlich-frühmittelalterlichen Klöstern », in Ochsenbein, P., Schmuki, K. (eds), Studien zum St. Galler Klosterplan, II, St. Gallen, 2002, p. 185-215 (Mitteilungen zur vaterländischen Geschichte, 52).
  16. Brunert 1996: Brunert, M. E., « Fulda als Kloster in eremo Zentrale Quellen über die Gründung im Spiegel der hagiographischen Tradition », in Schrimpf 1996, p. 59-78.
  17. Claussen 2014: Claussen, H., « Eine Reliquiennische in der Krypta auf dem Petersberg bei Fulda », in Kenner et al. 2014, p. 239-261.
  18. Clay 2020: Clay, J., « Boniface in Hessia and Thuringia », in Godlove, S., Aaij, M. (eds), A Companion to Boniface, Leiden, 2020, p. 270-298 (Brill’s Companions to the Christian Tradition, 92).
  19. Cramp 2005: Cramp, R., Wearmouth and Jarrow Monastic Sites, I, Swindon, 2005 (English Heritage Archaeological Monographs).
  20. Cramp 2008: Cramp, R., « Monastic settlements in Britain in the seventh-11th centuries », in De Rubeis, F., Marazzi, F. (eds), Monasteri in Europa occidentale (secoli VIII-XI): topografia e strutture, Roma, 2008, p. 113-133.
  21. Dannheimer 1991: Dannheimer, H., « Archäologische Chiemseeforschungen 1979-1989 », in Dannheimer, H. (ed.), Spurensuche, Festschrift für Hans-Jörg Kellner zum 70. Geburtstag, Kallmünz (Opf), 1991, p. 191-202 (Kataloge der Prähistorischen Staatssammlung, Beih. 3).
  22. Dannheimer 2005: Dannheimer, H., Frauenwörth. Archäologische Bausteine zur Geschichte des Klosters auf der Fraueninsel im Chiemsee, München, 2005 (Bayerische Akademie der Wissenschaften, Philosophisch-historische Klasse, Abhandlungen, N.F. 126).
  23. Drack 1988: Drack, W., « Die römischen Kanalheizungen der Schweiz », Jahrbuch der Schweizerischen Gesellschaft für Ur- und Frühgeschichte, 71, 1988, p. 123-159.
  24. Ellger 1989: Ellger, O., Die Michaelskirche zu Fulda als Zeugnis der Totensorge, Zur Konzeption einer Friedhofs- und Grabkirche im karolingischen Kloster Fulda, Fulda, 1989 (Veröffentlichung des Fuldaer Geschichtsvereins, 55).
  25. Elmshäuser 1992: Elmshäuser, K., « Kanalbau und technische Wasserführung im frühen Mittelalter », in Technikgeschichte, 59, 1992/1, p. 1-26.
  26. Faulkner 2022: Faulkner, N., « An agro-social revolution in a mid Saxon village: making sense of the Sedgeford excavations », in McKerracher, M., Hamerow, H. (eds), New Perspectives on the Medieval ‘Agricultural Revolution’: Crop, Stock and Furrow, Liverpool, 2022, p. 161-178.
  27. Fiorentino & Solinas 2015: Fiorentino, G., Solinas, F., « Le ricerche archeobotaniche: le cucine dell’abbazia e lo scarico al ponte della Zingara », in Marazzi, F., Luciano, A. (eds), Iuxta flumen Vulturnum, Gli scavi lungo il fronte fluviale di San Vincenzo al Volturno, Cerro al Volturno, 2015 (Studi Vulturnensi, 7), p. 245-258.
  28. Fischer & Oswald 1968: Fischer, M. F., Oswald, F., « Zur Baugeschichte der Fuldaer Klosterkirchen », in Rheinische Ausgrabungen, I, Köln-Graz, 1968, p. 268-280.
  29. Gauert 1984: Gauert, A., « Curtis », in Hoops’ Reallexikon der Germanischen Altertumskunde, V, Berlin-New York, 1984, p. 105-112.
  30. Gelichi 2018: Gelichi, S., « Il monastero nel tempo », in Gelichi, S., Librenti, M., Cianciosi, A. (eds), Nonantola 6: Monaci e contadini, abati e re il monastero di Nonontola attraverso l’archeologia (2002-2009), Sesto Fiorentino, 2018, p. 367-409.
  31. Geuenich 1996: Geuenich, D., « Die personelle Entwicklung der Klostergemeinschaft von Fulda bis zum Jahr 1000 », in Schrimpf 1996, p. 163-176.
  32. Gross 2011: Gross, U., « Zur früh- und hochmittelalterlichen Siedlungsgeschichte von Kirchheim », in Kirchheim unter Teck um 1000 n.Chr., Stuttgart, 2011, p. 68-80 (Geschichte und Archäologie, Archäologische Informationen aus Baden-Württemberg, 62).
  33. Haase, Werther & Wunschel 2015: Haase, C., Werther, L., Wunschel, A., « Güterdistribution und Verkehrsinfrastruktur klösterlicher Grundherrschaft im Frühmittelalter im Spannungsfeld ausgewählter historischer und archäologischer Quellen », in Later, C., Helmbrecht, M., Jecklin-Tischhauser, U. (eds), Infrastruktur und Distribution zwischen Antike und Mittelalter, Hamburg, 2015, p. 151-188 (Studien zu Spätantike und Frühmittelalter, 8).
  34. Haertle 1997: Haertle, C. M., Karolingische Münzfunde aus dem 9. Jahrhundert, Köln-Weimar-Wien, 1997.
  35. Hägermann 1990: Hägermann, D., « St. Galler Klosterplan – Ein Dokument technologischer Innovationen des Frühmittelalters? », in Rheinische Vierteljahrsblätter, 54, 1990, p. 1-18.
    [Google Scholar]
  36. Hägermann 1991: Hägermann, D., « Technik im frühen Mittelalter zwischen 500 und 1000 », in Hägermann, D., Schneider, H., Landbau und Handwerk. 750 v. Chr. bis 1000 n. Chr., Berlin, 1991 (Propyläen Technikgeschichte, 1), p. 316-508.
  37. Hahn 1984: Hahn, H., « cat. no 211,1 “Fulda Domplatz-Bereich” », in Roth, H., Wamers, E. (eds), Hessen im Frühmittelalter, Archäologie und Kunst, Ausstellung des Museums für Vor- und Frühgeschichte, Sigmaringen, 1984, p. 300-307.
  38. Hinz 1967: Hinz, H., « Die Stellung der Curtes innerhalb des karolingischen Wehrbaues », in Germania, 45, 1967, p. 130-142.
  39. Hodges 2016: Hodges, R., « In small things forgotten: Iuxta flumen Vulturnum. Gli scavi lungo il fronte fluviale di San Vincenzo al Volturno », in Archeologia medievale, 43, 2016, p. 417-421.
  40. Hodges 2022: Hodges, R., « Reflections on early medieval Montecassino’s epigraphic and settlement histories », Archeologia medievale, 49, 2022, p. 9-43.
  41. Hoffsummer & Tilkins-Peters 1988: Hoffsummer, P., Tilkins-Peters, C., « Le matériel archéologique des couchs médiévales », in Otte, M. (ed.), Les fouilles de la place Saint-Lambert a Liège, 2. Le vieux marché, Liège, 1988 (Études et recherches archéologique de l’Université de Liège, 23), p. 201-214.
  42. Horn 1973: Horn, W., « On the origins of the medieval cloister », in Gesta, 12, 1973, p. 13-52.
  43. Hussong 1985: Hussong, U., « Studien zur Geschichte der Reichsabtei Fulda bis zur Jahrtausendwende. Teil 1 », in Archiv für Diplomatik, 31, 1985, p. 1-225.
    [Google Scholar]
  44. Hussong 1986: Hussong, U., « Studien zur Geschichte der Reichsabtei Fulda bis zur Jahrtausendwende. Teil 2 », in Archiv für Diplomatik, 32, 1986, p. 129-304.
    [Google Scholar]
  45. Jacobsen 1996: Jacobsen, W., « Die Abteikirche in Fulda von Sturmius bis Eigil – kunstpolitische Positionen und deren Veränderungen », in Schrimpf 1996, p. 105-128.
  46. Jarnut 1975: Jarnut, J., « Quierzy und Rom, Bemerkungen zu den “Promissiones donationis” Pippins und Karls », in Historische Zeitschrift, 220, 1975, p. 265-297.
    [Google Scholar]
  47. Jäschke 1977: Jäschke, K.-U., « Bonifatius und die Königssalbung Pippin des Jüngeren », in Archiv für Diplomatik, 23, 1977, p. 25-54.
    [Google Scholar]
  48. Jebe 2021: Jebe, J., « Reform als Bedrohung? Diagnosen aus der Fuldaer Mönchsgemeinschaft im Spiegel des Supplex libellus und der Vita Sturmi », in Bührer-Thierry, G., Grabowsky, A., Patzold, S. (eds), Les communautés menacées au haut Moyen Âge (vie‑xie siècles), Turnhout, 2021 (Haut Moyen Âge, 42), p. 57-79.
  49. Jecklin-Tischhauser 2019: Jecklin-Tischhauser, U., Tomils, Sogn Murezi, Ein kirchliches Zentrum im frühmittelalterlichen Graubünden, Chur, 2019 (Archäologie Graubünden, Sonderh. 13).
  50. Kavánová 1995: Kavánová, B., « Knochen- und Geweihindustrie in Mikulčice », in Daim, F., Poláček, L. (eds), Studien zum Burgwall von Mikulčice 1, Brno, 1995 (Spisy archeologického ústavu AV ČR Brno 2), p. 113-378.
  51. Kenner et al. 2014: Kenner, C. et al. (eds), Die Kirche St. Peter in Petersberg bei Fulda, Denkmalpflege und Forschung, Stuttgart, 2014 (Arbeitshefte des Landesamtes für Denkmalpflege Hessen, 20).
  52. Kind 2008: Kind, T., « Das karolingerzeitliche Kloster Fulda – ein “monasterium in solitudine”. Seine Strukturen und Handwerksproduktion nach den seit 1898 gewonnenen archäologischen Daten », in Henning, J. (ed.), Post-Roman Towns, Trade and Settlement in Europe and Byzantium, I. The Heirs of the Roman West, Berlin-New York, 2008 (Millennium-Studien zu Kultur und Geschichte des ersten Jahrtausends n. Chr., 5/1), p. 367-410.
  53. Kind 2009: Kind, T., « Pfahlbauten und merowingische curtis in Fulda? », in Hamberger, W., Heiler, Th., Kirchhoff, W. (eds), Geschichte der Stadt Fulda, I. Von den Anfängen bis zum Ende des Alten Reiches, Fulda, 2009, p. 45-68.
  54. Kind 2011: Kind, T., « Das Kloster Fulda im 9.–10. Jahrhundert in archäologischer Sicht – Siedlungsstruktur und Alltagskultur », in Stasch, G. K., Verse, F. (eds), König Konrad I. Herrschaft und Alltag, 911 Königswahl zwischen Karolingern und Ottonen, Begleitband zur Ausstellung Vonderau Museum Fulda 09.11.2011-5.2.2012, Petersberg, 2011 (Vonderau Museum Fulda Kataloge, 28), p. 85-102.
  55. Kind 2016: Kind, T., « Fulda-Langebrückenstrasse: The first excavated early medieval watermill in Europe », in Jaccottey, L., Rollier, G. (eds), Archéologie des moulins hydrauliques, à traction animale et à vent des origines à l’époque médiévale et moderne en Europe et dans le monde méditerranéen, Actes du colloque international (Lons-le-Saunier, 2-5 novembre 2011), Besançon, 2016 (Annales littéraires de l’Université de Besançon, 959; Série Environnement, sociétés et archéologie, 20), p. 277-287.
  56. Kind, Wedepohl & Kronz 2004: Kind, T., Wedepohl, K. H., Kronz, A., « Karolingerzeitliches Glas und verschiedene Handwerksindizien aus dem Kloster Fulda. Aufarbeitung der Altfunde Joseph Vonderaus von 1898-99 », in Zeitschrift für Archäologie des Mittelalters, 31, 2004, p. 61-93.
    [Google Scholar]
  57. Klüßenorf 1984: Klüßendorf, N., « cat.no 155 “Denar Ludwigs des Frommen” », in Roth, H., Wamers, E. (eds), Hessen im Frühmittelalter, Archäologie und Kunst, Ausstellung des Museums für Vor- und Frühgeschichte, Sigmaringen 1984, p. 234-235.
  58. Krause 2002: Krause, E., Die Ratgerbasilika in Fulda, Eine forschungsgeschichtliche Untersuchung, Fulda, 2022 (Quellen und Abhandlungen zur Geschichte der Abtei und der Diözese Fulda, 27).
  59. Kreuz 2018: Kreuz, A., « Archäobotanische Hinweise zu Landwirtschaft, Gartenbau und Ernährung der Mönche », in Lammers, D. (ed.), Kloster Lorsch, Die archäologischen Untersuchungen der Jahre 2010-2016, Zehntscheune und Forstgarten, Regensburg, 2018 (Schriften zum Kloster Lorsch, 2), p. 316-321.
  60. Krier & Wagner 1985: Krier, J., Wagner, R., « Zur Frühgeschichte des Willibrordus-Klosters in Echternach », in Hémecht, 37, 1985, p. 15-51.
    [Google Scholar]
  61. Kügelgen 2016: Kügelgen, D. von Der Mann mit dem goldenen Spaten, Joseph Vonderau (1863-1951) im Spiegel seiner Zeit, Fulda, 2016 (Veröffentlichung des Fuldaer Geschichtsvereins, 72).
  62. Legler 1996: Legler, R., « Problem mit einem Phantom oder: Seit wann gibt es einen Kreuzgang in der abendländischen Klosterarchitektur? », in Sennhauser 1996, p. 85-89.
  63. Lobbedey 1986: Lobbedey, U., « Zu eingetieften Räumen in früh- und hochmittelalterlichen Kirchen », in Frühmittelalterliche Studien, 20, 1986, p. 390-413.
    [Google Scholar]
  64. Lobbedey 2008: Lobbedey, U., « Klosterbau im deutschen Reich vom frühen Mittelalter bis zur Zeit der Ottonen », in De Rubeis, F., Marazzi, F. (eds), Monasteri in Europa occidentale (secoli VIII-XI): topografia e strutture, Roma, 2008, p. 103-111.
  65. Lobbedey 2014: Lobbedey, U., « Die Kirche auf dem Petersberg – architekturgeschichtliche Einordnung der vor- und frühromanischen Bauteile », in Kenner et al. 2014, p. 263-282.
  66. de Longueville & Pigière 2012: Longueville, S. de, Pigière, F., « Le mobilier en bois de cervidés, en os et en invoire », in Brulet, R. (ed.), La cathédrale Notre-Dame de Tournai, L’archéologie du site et des monuments anciens, 3: Mobiliers, archéozoologie et anthropologie, sépultures épiscopales, Namur, 2012 (Études et documents, Archéologie, 29), p. 129-165.
  67. Louis 1995: Louis, É., « Fouilles archéologiques sur le site du monastère merovingien puis carolingien de Hamage (France, Département du Nord) », in Handelingen der Maatschappij voor Geschiedenis en Oudheidkunde te Gent, Nieuwe Reeks, 49, 1995, p. 45-69.
  68. Louis 1997: Louis, É., « Aux débuts du monachisme en Gaule du Nord: les fouilles de l’abbaye mérovingienne et carolingienne de Hamage (Nord) », in Rouche, M. (ed.), Clovis, histoire & mémoire, Le baptême de Clovis, son écho à travers l’histoire, Paris, 1997, p. 843-868.
  69. Louis 2002: Louis, É., Wandignies-Hamage, ancienne abbaye de Hamage, Villeneuve d’Ascq, 2002 (Archéologie en Nord et Pas-de-Calais, 2).
  70. Louis 2015: Louis, É., « Les indices d’artisanat dans et autour de monastère de Hamage (Nord) », Bulletin du centre d’études mediévales d’Auxerre, hors-série 8, 2015, p. 186-200.
  71. Löwe 1955: Löwe, H., « Bonifatius und die bayerisch-fränkische Spannung, Ein Beitrag zur Geschichte der Beziehungen zwischen dem Papsttum und den Karolingern », in Jahrbuch für fränkische Landesforschung, 15, 1955, p. 85-127.
  72. Luciano 2015: Luciano, A., « I pettini e l’artigianato dell’ osso e del cuoio a San Vincenzo al Volturno », in Marazzi, F., Luciano A. (eds), Iuxta flumen Vulturnum, Gli scavi lungo il fronte fluviale di San Vincenzo al Volturno, Cerro al Volturno, 2015 (Studi Vulturnensi, 7), p. 203-215.
  73. Markgraf & Weidemüller 2022: Markgraf, K., Weidemüller, J., « Eine karolingische Wassermühle im Paartal bei Oberbernbach », in Das archäologische Jahr in Bayern 2021, 2022, p. 121-124.
  74. McErlean & Crothers 2007: McErlean, T. & Crothers, N., Harnessing the tides, The early medieval tide mills at Nendrum monastery, Strangford Lough, Norwich, 2007 (Northern Ireland archaeological monographs 7).
  75. McKerracher 2022: McKerracher, M., « Prospect and protect: syntironomy and cereals in early medieval England », in McKerracher, M., Hamerow, H. (eds), New Perspectives on the Medieval ‘Agricultural Revolution’: Crop, Stock and Furrow, Liverpool, 2022, p. 125-144.
  76. Meyer 1989: Meyer, D., « Warmluftheizungen des Mittelalters, Befunde aus Lübeck im europäischen Vergleich », in Bauforschung und Handwerk auf dem Lübecker Stadthügel, Bonn, 1989 (Lübecker Schriften zur Archäologie und Kulturgeschichte, 16), p. 209-232.
  77. Mitchell 2011: Mitchell, J., « The small finds », in Hodges, R., Leppard, S., Mitchell, J. (eds), San Vincenzo Maggiore and its Workshops, London, 2011 (Archaeological Monographs of The British School at Rome, 17), p. 195-333.
  78. Muigg et al. 2018: Muigg, B., et al., « Dendrochronological evidence of early medieval water mill technology », in Journal of Archaeological Science, 93, 2018, p. 17-25.
  79. Müller 1995: Müller, M., « Die vor- und frühgeschichtliche Besiedlung des Fuldaer Landes », in Heinemeyer, W., Jäger, B. (eds), Fulda in seiner Geschichte: Landschaft, Reichsabtei, Stadt, Fulda, 1995, p. 73-88.
  80. Niederhöfer 2002: Niederhöfer, K., « Alt-Schieder, Eine mittelalterliche Befestigungsanlage im Emmertal », in Lippische Mitteilungen aus Geschichte und Landeskunde, 71, 2002, p. 93-147.
    [Google Scholar]
  81. Otten 2003: Otten, T., Die Ausgrabungen unter St. Viktor zu Xanten, Dom und Immunität, Mainz, 2003 (Rheinische Ausgrabungen, 53).
  82. Padberg 2005: Padberg, L. E. von, Bonifatius, Missionar und Reformer, München 2003.
  83. Palmer 2009: Palmer, J. T., Anglo-Saxons in a Frankish World, 690-900, Turnhout, 2009 (Studies in the Early Middle Ages 19).
  84. Pesch 2005: Pesch, A., Das Domkloster, Archäologie und historische Forschung zu Liudgers honestum monasterium in pago Sudergoe. Die Ausgrabungen 1936-1981 am Horsteberg in Münster, Mainz, 2005 (Der Dom zu Münster, 4; Denkmalpflege und Forsschung in Westfalen, 26, 4).
    [Google Scholar]
  85. Polaček & Maříková-Kubková 2010: Polaček, L. Maříková-Kubková, J. (eds), Frühmittelalterliche Kirchen als archäologische und historische Quelle, Brno, 2010 (Internationale Tagungen in Mikulčice, 8).
  86. Prinz 1974: Prinz, F., « Topos und Realität in hagiographischen Quellen (Eine Erwiderung) », in Zeitschrift für bayerische Landesgeschichte, 37, 1974, p. 162-166.
    [Google Scholar]
  87. Prinz 1976: Prinz, F., « Frühes Mönchtum in Südwestdeutschland und die Anfänge der Reichenau. Entwicklungslinien und Forschungsprobleme », in Prinz, F. (ed.), Mönchtum und Gesellschaft im Frühmittelalter, Darmstadt, 1976, p. 151-203 (Wege der Forschung, 312).
  88. Prummel 2011: Prummel, W., « The bone and antler tools from the Wijnaldum-Tjitsma terp », in Journal of Archaeology in the Low Countries, 3, 2011, p. 65-106.
    [Google Scholar]
  89. Raaijmaakers 2012: Raaijmakers, J., The Making of the Monastic Community of Fulda, c. 744-c. 900, Cambridge, 2012 (Cambridge studies in medieval life and though, 4th ser., 83).
  90. Richter 1900: Richter, G., Die ersten Anfänge der Bau- und Kunstthätigkeit des Klosters Fulda. Zugleich erster Teil einer Kunstgeschichte des Klosters Fulda, Fulda, 1900 (Veröffentlichung des Fuldaer Geschichtsvereins, 2).
  91. Richter 1905: Richter, G, « Beiträge zur Geschichte der Grabeskirche des heiligen Bonifatius in Fulda », in Festgabe zum Bonifatius-Jubiläum 1905, Fulda, 1905 (Fuldaer Geschichtsverein, Vereinsgabe für das Jahr 1905), p. 1-76.
  92. Riesenberger 1970: Riesenberger, D, « Zur Geschichte des Hausmeiers Karlmann », Westfälische Zeitschrift, 120, 1970, p. 271-285.
    [Google Scholar]
  93. Rösener 1996: Rösener, W., « Die Grundherrschaft des Klosters Fulda in karolingischer und ottonischer Zeit », in Schrimpf 1996, p. 209-224.
  94. Rulkens 2013: Rulkens, A. J. R., Means, Motives and Opportunities: The Architecture of Monasteries during the Reign of Louis the Pious (814-840), Amsterdam 2013.
  95. Sage 1978: Sage, W., « Die Ausgrabungen in den Domen zu Bamberg und Eichsstätt 1969-1972 », in Jahresbericht der bayerischen Bodendenkmalpflege, 17/18, 1976/77, 1978, p. 178-234.
  96. Sapin 2008: Sapin, C., « L’archéologie des premiers monastères en France (ve-déb. xie s.), un état de recherches », in De Rubeis, F., Marazzi, F. (eds), Monasteri in Europa occidentale (secoli VIII-XI): topografia e strutture, Roma, 2008, p. 83-102.
  97. Sasse 2017: Sasse, B., « Alte Weisheit in Gottes Hand. Der karolingische Konstruktionsentwurf für das Kloster St. Gallen als Quelle für wassertechnische Planung in antiker Tradition », in Schattner, T., Valdés Fernández, F. (eds), Wasserversorgung in Toledo und Wissensvermittlung von der Antike ins Mittelalter, Tübingen-Berlin, 2017 (Iberia Archaeologica, 19), p. 339-369.
  98. Schieffer 1980: Schieffer, T. Winfrid-Bonifatius und die christliche Grundlegung Europas, Darmstadt 1980.
  99. Schmid 1994: Schmid, P., « Oldorf – eine frühmittelalterliche friesische Wurtsiedlung », in Germania, 72, 1994, p. 231-267.
  100. Schopf 2014: Schopf, S., « Ergebnisse und Zusammenfassung der baugeschichtlichen und restauratorischen Untersuchungen aus den Jahren 2003-07 », in Kenner et al. 2014, p. 151-228.
  101. Schreg 2014: Schreg, R., « Uncultivated landscapes or wilderness? Early medieval land use in low mountain ranges and flood plains of southern Germany », in European Journal of Postclassical Archaeologies, 4, 2014, p. 69-98.
    [Google Scholar]
  102. Schreg 2018: Schreg, R., « Mönche als Pioniere in der Wildnis? Aspekte des mittelalterlichen Landesausbaus », in Krätschmer, M., Thode, K., Vossler-Wolf, C. (eds), Klöster und ihre Ressourcen, Räume und Reformen monastischer Gemeinschaften im Mittelalter, Tübingen, 2018 (RessourcenKulturen, 7), p. 39-58.
  103. Schulze-Dörrlamm 2003: Schulze-Dörrlamm, M., « Der rekonstruierte Beinkasten von Essen-Werden, Reliquiar und mutmaßlicher Tragaltar des hl. Liudger aus dem späten 8. Jahrhundert », in Jahrbuch des Römisch-Germanischen Zentralmuseums Mainz, 49, 2003, p. 281-363.
    [Google Scholar]
  104. Schrimpf 1996: Schrimpf, G. (ed.), Kloster Fulda in der Welt der Karolinger und Ottonen, Frankfurt am Main, 1996 (Fuldaer Studien, 7).
  105. Schwind 1981: Schwind, F., « Buchonia », in Hoops’ Reallexikon der Germanischen Altertumskunde, IV, Berlin-New York, 1981, p. 85-87.
  106. Schwind 1999: Schwind, F., « Zu karolingerzeitlichen Klöstern als Wirtschaftsorganismen und Stätten handwerklicher Tätigkeit », in Braasch-Schwersmann, U. (ed.), Burg, Dorf, Kloster, Stadt. Beiträge zur hessischen Landesgeschichte ud zur mittelalterlichen Verfassungsgeschichte, Marburg, 1999 (Untersuchungen und Materilien zur Verfassungs- und Landesgeschichte, 17), p. 445-473.
  107. Sennhauser 1996: Sennhauser, H. R. (ed.), Wohn- und Wirtschaftsbauten frühmittelalterlicher Klöster.  Internationales  Symposium,  (Zurzach  und  Müstair, 26 september- 2 oktober 1995), Zürich, 1996 (Acta Müstair, 3; Veröffentlichungen des Instituts für Denkmalpflege an der ETH Zürich, 17).
  108. Sennhauser 1996a: Sennhauser, H. R., « Klostermauern und Klostertürme », in Sennhauser 1996, p. 195-218.
  109. Sennhauser 2003: Sennhauser, H. R., « Frühchristliche und frühmittelalterliche kirchliche Bauten in der Diözese Chur und in den nördlich und südlich angrenzenden Landschaften; Chur, Kirche (?) im Welschdörfli; Typen, Formen und Tendenzen im frühen Kirchenbau des östlichen Alpengebietes: Versuch einer Übersicht,» in Sennhauser, H. R. (ed.), Frühe Kirchen im östlichen Alpengebiet. Von der Spätantike bis in ottonische Zeit, München, 2003 (Bayerische Akademie der Wissenschaften, Philosophisch-historische Klasse, Abhandlungen, N.F. 123; Schriften der Kommission zur vergleichenden Archäologie römischer Alpen- und Donauländer), p. 9-222, 707-730, 919-980.
  110. Squatriti 2002: Squatriti, P., Water and Society in Early Medieval Italy, ad 400-1000, Cambridge, 2002.
  111. Tangl 1960: Tangl, G., « Die Sendung des ehemaligen Hausmeiers Karlmann in das Frankenreich im Jahre 754 und der Konflikt der Brüder », in Quellen und Forschungen aus italienischen Archiven und Bibliotheken, 40, 1960, p. 1-42.
    [Google Scholar]
  112. Untermann 1996: Untermann, M., « Das „Mönchshaus“in der früh- und hochmittelalterlichen Klosteranlage, Beobachtungen zu Lage und Raumaufteilung des Klausurostflügels », in Sennhauser 1996, p. 233-257.
  113. Untermann 2006: Untermann, M., Rezension Eva Krause, Die Ratgarbasilika…, in Mitteilungen der deutschen Gesellschaft für Archäologie des Mittelalters und der Neuzeit, 17, 2006, p. 144-147.
  114. Verse, Warneke & Wingenfeld 2021: Verse, F., Warneke, T., Wingenfeld, M., « Frühmittelalterliche Mühlen in Fulda », in Fuldaer Geschichtsblätter, 96, 2021, p. 7-30.
  115. Vonderau 1899: Vonderau, J., Pfahlbauten im Fuldathale, Fulda, 1899 (Veröffentlichung des Fuldaer Geschichtsvereins, 1).
  116. Vonderau 1931: Vonderau, J., Denkmäler aus vor- und frühgeschichtlicher Zeit im Fuldaer Lande, Fulda, 1931 (Veröffentlichung des Fuldaer Geschichtsvereins, 21).
  117. Vonderau 1946: Vonderau, J., Die Ausgrabungen am Domplatz zu Fulda im Jahre 1941. Ein merowingischer Gutshof auf dem nachmaligen Klostergelände, Fulda, 1946 (Veröffentlichung des Fuldaer Geschichtsvereins, 26).
  118. Walz 1989: Walz, D., Auf den Spuren der Meister, Die Vita des heiligen Magnus von Füssen, Sigmaringen 1989.
  119. Weidinger 1989: Weidinger, U., « Untersuchungen zur Grundherrschaft des Klosters Fulda in der Karolingerzeit », in Rösener, W. (ed.), Strukturen der Grundherrschaft im frühen Mittelalter, Göttingen, 1989 (Veröffentlichungen des Max-Planck-Instituts für Geschichte, 92), p. 247-265.
  120. Weidinger 1991: Weidinger, U., Untersuchungen zur Wirtschaftsstruktur des Klosters Fulda in der Karolingerzeit, Stuttgart, 1991 (Monographien zur Geschichte des Mittelalters, 36).
  121. Wickham 1990: Wickham, C., « European forests in the early middle ages: landscape and land clearance », in L’ambiente vegetale nell’alto medioevo. Settimane di studio del centro italiano di studi sull’alto medioevo, XLVII, Spoleto, 1990, p. 479-548.
  122. Wintergerst 2007: Wintergerst, M., Franconofurd 1: Die Befunde der karolingisch-ottonischen Pfalz aus den Frankfurter Altstadtgrabungen 1953-1993, Frankfurt, 2007 (Schriften des Archäologischen Museums Frankfurt, 22/1).
  123. Witten 2012: Witten, B., Die Vita der heiligen Lioba, Eine angelsächsische Äbtissin im Karolingerreich, Hamburg, 2012 (Studien zur Kirchengeschichte, 13).
  124. Zerl, Nolde & Meurers-Balke 2020: Zerl, T., Nolde, N., Meurers-Balke, J., « Die archäobotanischen und archäozoologischen Befunde aus der karolingerzeitlichen Abtei Werden im Spiegel frühmittelalterlicher Schriftquellen », in Beiträge zur Archäozoologie und Prähistorischen Anthropologie, 12, 2020, p. 105-116.
  125. Zettler 1988: Zettler, A., Die frühen Klosterbauten der Reichenau, Ausgrabungen – Schriftquellen – St. Galler Klosterplan. Archäologie und Geschichte, Sigmaringen, 1988 (Freiburger Forschungen zum ersten Jahrtausend in Südwestdeutschland, 3).
  126. Zettler 1989: Zettler, A., « Zum frühkarolingischen Klosterbau im östlichen Frankenreich: Das Beispiel Reichenau », in Zeitschrift für Archäologie des Mittelalters, 14/15, 1989, p. 81-118.
    [Google Scholar]
  127. Zettler 2008: Zettler, A. « Public, collective and communal spaces in early medieval monasteries: San Vincenzo and the Plan of Saint Gall », in De Rubeis, F., Marazzi, F. (eds), Monasteri in Europa occidentale (secoli VIII-XI): topografia e strutture, Roma 2008, p. 259-273.
/content/books/10.1484/M.HAMA-EB.5.144810
dcterms_title,dcterms_subject,pub_serialIdent,pub_author,pub_keyword
-contentType:Contributor -contentType:Concept -contentType:Institution
10
5
This is a required field.
Please enter a valid email address.
Approval was a Success
Invalid data
An error occurred.
Approval was partially successful, following selected items could not be processed due to error:
Please enter a valid_number test
aHR0cHM6Ly93d3cuYnJlcG9sc29ubGluZS5uZXQv